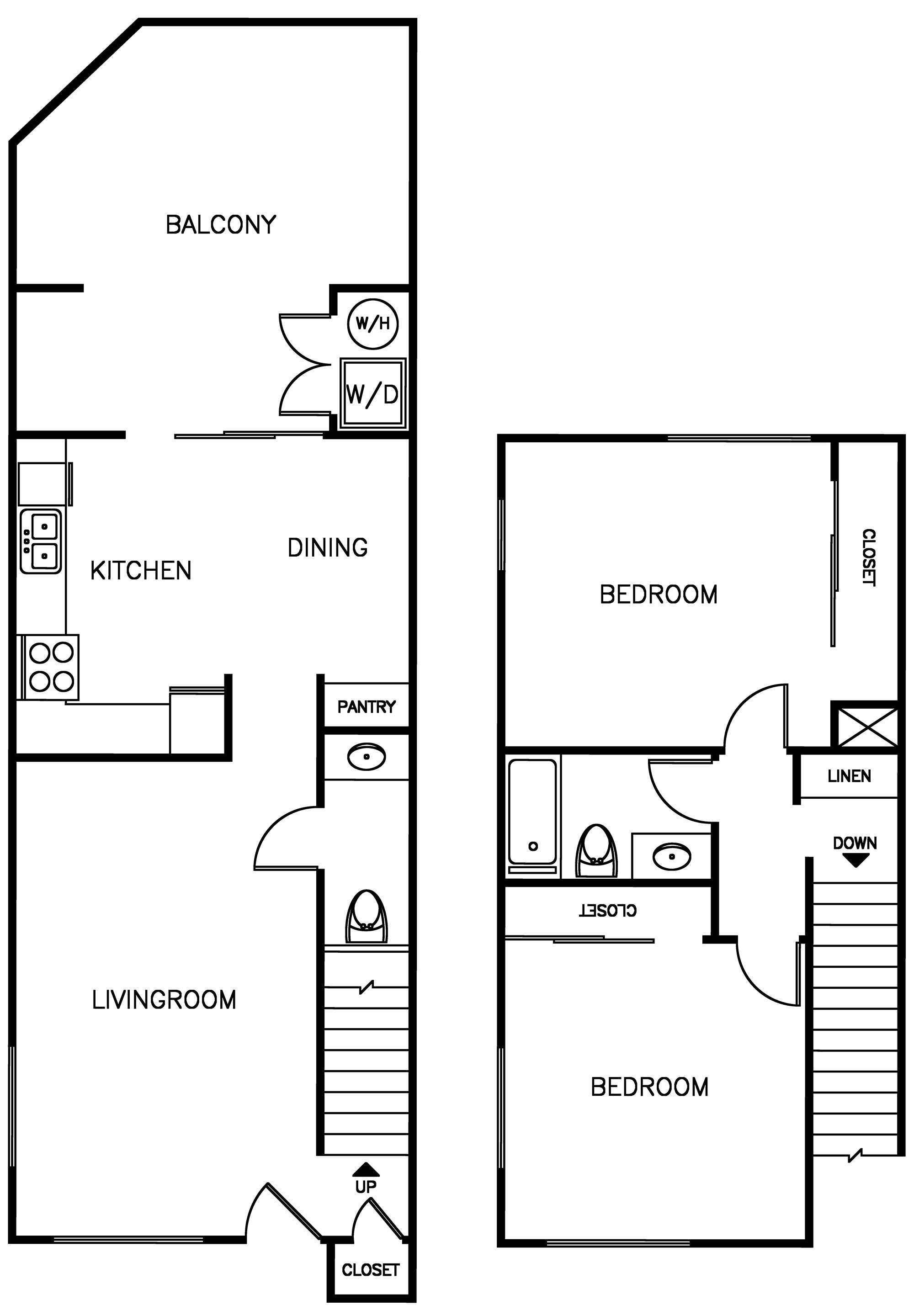
Waterstone Alta Loma Apartments
Disclaimer: Floor plans are artist’s rendering and all dimensions are approximate. Actual product and specifications may vary in dimension or detail. Not all features are available in every apartment.